Chỉ dẫn cấu tạo các dạng liên kết của kết cấu thép.

Ngày đăng: 18/11/2022 - Người đăng: Phú Phạm - Lượt xem: 1671 - Đánh giá: 5 /5

Danh mục

Khác...

Thể loại

Kết cấu thép

Công cụ

Hạng mục

Mô tả ngắn

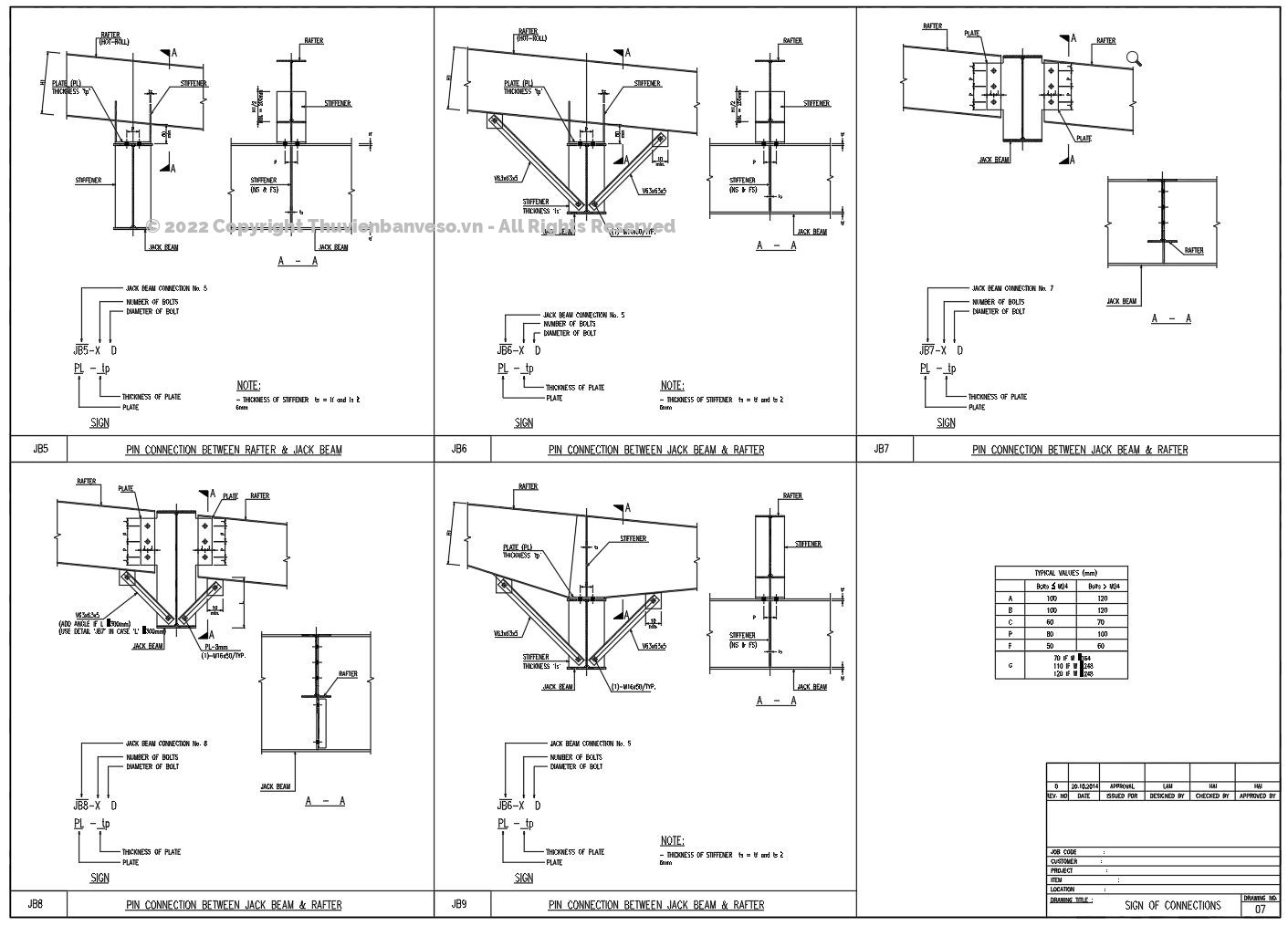
Bản vẽ gồm đầy đủ các dạng liên kết, cấu tạo của kết cấu thép, ghi chú chung, dùng làm template tham khảo cho kỹ sư thiết kế

Kích cỡ

Chiều dài: m - Chiều rộng: m - Diện tích: m2

File download

Tệp tinwww.thuvienbanveso.vn

Hoàn lại 100% giá trị nếu file tải bị lỗi hoặc không đúng mô tả của người bán

Mô tả chi tiết

Đây là bản vẽ bao gồm đầy đủ tất cả các dạng liên kết của kết cấu thép

Hướng dẫn người kỹ sư cấu tạo về kích thước bản mã, bulong liên kết sao cho đúng và chuẩn kỹ thuật

Các bạn có thểm dùng bản vẽ này làm quy chuẩn và tham khảo cho nguyên tắc khi thiết kế kết cấu thép

Bản vẽ trình bày khoa học, dễ hiểu và sạch đẹp

Cam kết đáp ứng được yêu cầu của các bạn về bản vẽ này

Xin cảm ơn đã quan tâm và ủng hộ

Thống kê đánh giá (0 lượt)

Trung bình

- Bản vẽ bình thường (9)
- Bản vẽ hay (0)
- Bản vẽ rất hay (0)
- Bản vẽ tốt (3)
- Bản vẽ rất tốt (25)

Bình luận (3)

Phú Phạm - Bản vẽ rất hay và cần thiết cho các kỹ sư thiết kế kết cấu thép trong quá trình làm việc ( 18/11/2022 )

Phú Phạm - rất bổ ích ( 18/11/2022 )

KTS Phạm Đình Ngọc - hay ( 16/01/2023 )

Bình luận bản vẽ

Bản vẽ liên quan

Bản vẽ Bản vẽ nhà để xe mái tôn vì kèo thép KT 4x17,5m

Bản vẽ nhà để xe mái tôn vì kèo thép KT 4x17,5m

KTS Duy Pro

0

Bình luận
Lượt xem
Lượt tải
Giá: 50,000 VND
Nhà xưởng 1 tầng
Bản vẽ Bản vẽ nhà xưởng 35x88m đầy đủ kiến trúc và kết cấu

Bản vẽ nhà xưởng 35x88m đầy đủ kiến trúc và kết cấu

KTS Duy Pro

0

Bình luận
Lượt xem
Lượt tải
Giá: 80,000 VND
Nhà xưởng 1 tầng
Bản vẽ Bản vẽ điện năng lượng mặt trời áp mái 1MWP

Bản vẽ điện năng lượng mặt trời áp mái 1MWP

KTS Duy Pro

0

Bình luận
Lượt xem
Lượt tải
Giá: 200,000 VND
Khác... (Nhà xưởng, KCT)
Bản vẽ Bản vẽ nhà xưởng vì kèo thép kích thước 13x62m

Bản vẽ nhà xưởng vì kèo thép kích thước 13x62m

KTS Duy Pro

0

Bình luận
Lượt xem
Lượt tải
Giá: 100,000 VND
Nhà xưởng 1 tầng
Bản vẽ Bản vẽ File cad triển khai chi tiết bể nước ngầm PCCC 750m3 kích thước 8x38x3m
Nhà xưởng 1 tầng
Bản vẽ Bản vẽ Máy sấy thùng quay

Bản vẽ Máy sấy thùng quay

Tran Huynh Diep

0

Bình luận
Lượt xem
Lượt tải
Giá: 50,000 VND
Khác... (Nhà xưởng, KCT)
Bản vẽ Full dự án nhà xưởng nhiều hạng mục kết cấu liên hợp

Full dự án nhà xưởng nhiều hạng mục kết cấu liên hợp

VINCENT PHAM

0

Bình luận
Lượt xem
Lượt tải
Giá: 30,000 VND
Nhà xưởng 2 tầng
Bản vẽ Bản vẽ Cad kiến trúc cột tháp Anten Monopole cao 30m

Bản vẽ Cad kiến trúc cột tháp Anten Monopole cao 30m

Phan Công Khả

0

Bình luận
Lượt xem
Lượt tải
Giá: 65,000 VND
Tháp viễn thông, Biển hiệu
Bản vẽ Nhà xưởng 68x132 m ( KT + KC )

Nhà xưởng 68x132 m ( KT + KC )

hau vu

0

Bình luận
Lượt xem
Lượt tải
Giá: 50,000 VND
Nhà xưởng 1 tầng
Bản vẽ Cad bản vẽ xưởng, chi tiết nhà xưởng khung thép

Cad bản vẽ xưởng, chi tiết nhà xưởng khung thép

Thiên Store

0

Bình luận
Lượt xem
Lượt tải
Giá: 50,000 VND
Nhà xưởng 1 tầng
s

Bản vẽ gợi ý

Bản vẽ Bản vẽ nhà phố 4 tầng KT 4.3 x 13m

Bản vẽ nhà phố 4 tầng KT 4.3 x 13m

KTS Duy Pro

0

Bình luận
Lượt xem
Lượt tải
Giá: 30,000 VND
Nhà phố trên 3 tầng
Bản vẽ Bản vẽ hoàn công hạng mục Điện chung cư 17 tầng

Bản vẽ hoàn công hạng mục Điện chung cư 17 tầng

KTS Duy Pro

0

Bình luận
Lượt xem
Lượt tải
Giá: 30,000 VND
Chung cư
Bản vẽ Bản vẽ cad biệt thự hiện đại 3 tầng KT 10x16m

Bản vẽ cad biệt thự hiện đại 3 tầng KT 10x16m

KTS Duy Pro

0

Bình luận
Lượt xem
Lượt tải
Giá: 20,000 VND
Biệt thự 3 tầng
Bản vẽ Biệt thự cổ điển 3 tầng KT15x12m full

Biệt thự cổ điển 3 tầng KT15x12m full

KTS Duy Pro

0

Bình luận
Lượt xem
Lượt tải
Giá: 40,000 VND
Biệt thự 3 tầng
Bản vẽ Bản vẽ kiến trúc nhà tổ hợp 7x17.5m (cà phê, karaoke, masage, nhà nghỉ)
Nhà phố trên 3 tầng
Bản vẽ Bản vẽ nhà phố 7 tầng KT 4.7 x 10.5 full kiến trúc kết cấu

Bản vẽ nhà phố 7 tầng KT 4.7 x 10.5 full kiến trúc kết cấu

KTS Duy Pro

0

Bình luận
Lượt xem
Lượt tải
Giá: 40,000 VND
Nhà phố trên 3 tầng
Bản vẽ Bản vẽ nhà cho thuê 4 tầng 4.7x17.5m full kiến trúc, kết cấu

Bản vẽ nhà cho thuê 4 tầng 4.7x17.5m full kiến trúc, kết cấu

KTS Duy Pro

0

Bình luận
Lượt xem
Lượt tải
Giá: 50,000 VND
Nhà phố trên 3 tầng
Bản vẽ Nhà phố 4 tầng kích thước 6x7.5m full kiến trúc, kết cấu

Nhà phố 4 tầng kích thước 6x7.5m full kiến trúc, kết cấu

KTS Duy Pro

0

Bình luận
Lượt xem
Lượt tải
Giá: 30,000 VND
Nhà phố trên 3 tầng
Bản vẽ Bản vẽ biệt thự 3 tầng 8x16m

Bản vẽ biệt thự 3 tầng 8x16m

KTS Duy Pro

0

Bình luận
Lượt xem
Lượt tải
Giá: 30,000 VND
Biệt thự 3 tầng
Bản vẽ Đồ án kết cấu thép tuyển chọn

Đồ án kết cấu thép tuyển chọn

KTS Duy Pro

0

Bình luận
Lượt xem
Lượt tải
Giá: 30,000 VND
Đồ án tốt nghiệp (Tài liệu)